




Barnes International présente cette maison individuelle exclusive située dans l'un des quartiers les plus prisés de Teià , où architecture contemporaine, intimité et efficacité énergétique s'intègrent en parfaite harmonie. Avec plus de 400 m² construits sur un terrain de 800 m², cette propriété offre un cadre résidentiel haut de gamme, conçu pour ceux qui recherchent une qualité de vie à proximité de la mer.
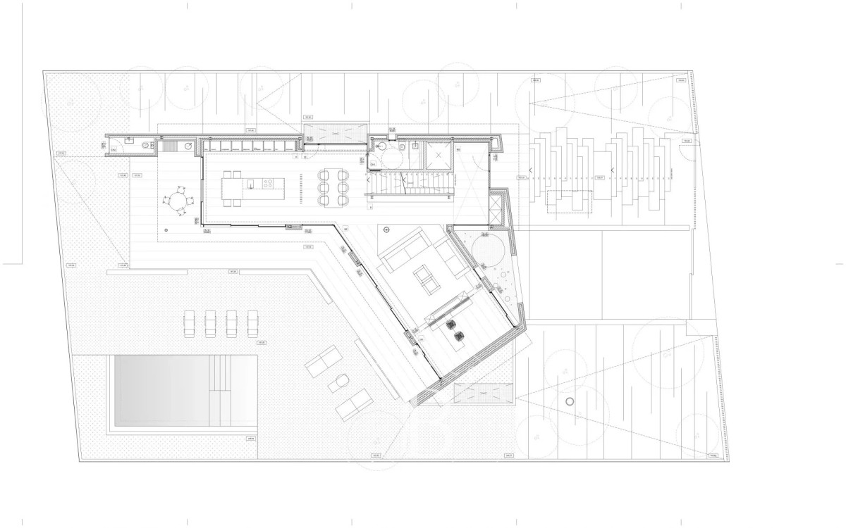
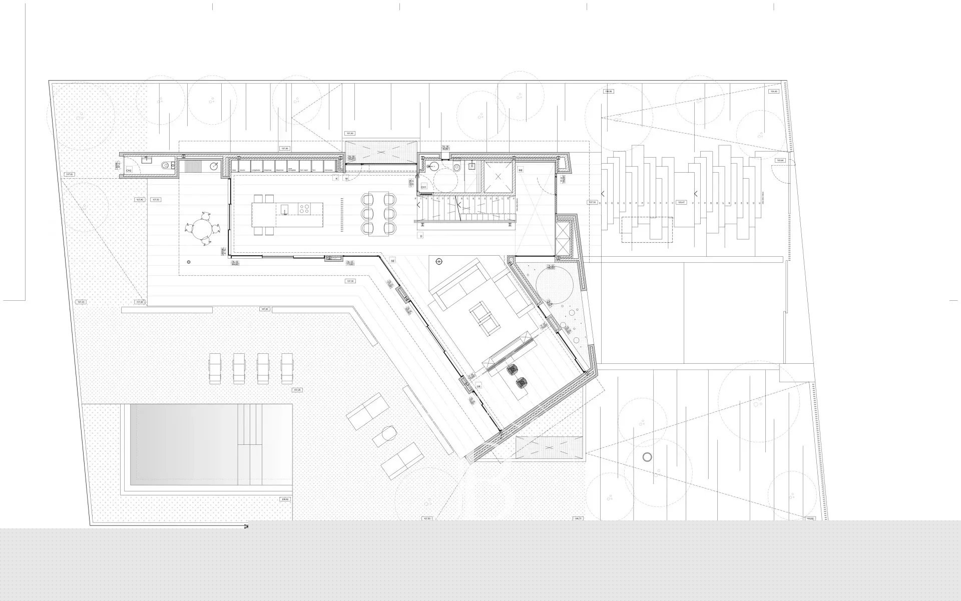
La maison se distingue par ses lignes modernes et son élégante façade qui combine des tons clairs et de la pierre naturelle, lui conférant caractère et sophistication dès le premier regard. Au rez-de-chaussée, un vaste espace ouvert abrite le salon et la salle à manger avec cheminée, baignés d'une excellente lumière naturelle. La cuisine, entièrement équipée d'appareils électroménagers haut de gamme, communique directement avec l'extérieur, créant une continuité parfaite entre l'intérieur et le jardin.
L'espace extérieur a été conçu pour être apprécié tout au long de l'année, avec un jardin soigné, une piscine chauffée avec hydromassage et un espace barbecue idéal comme salle à manger d'été, le tout avec une agréable vue sur la mer.
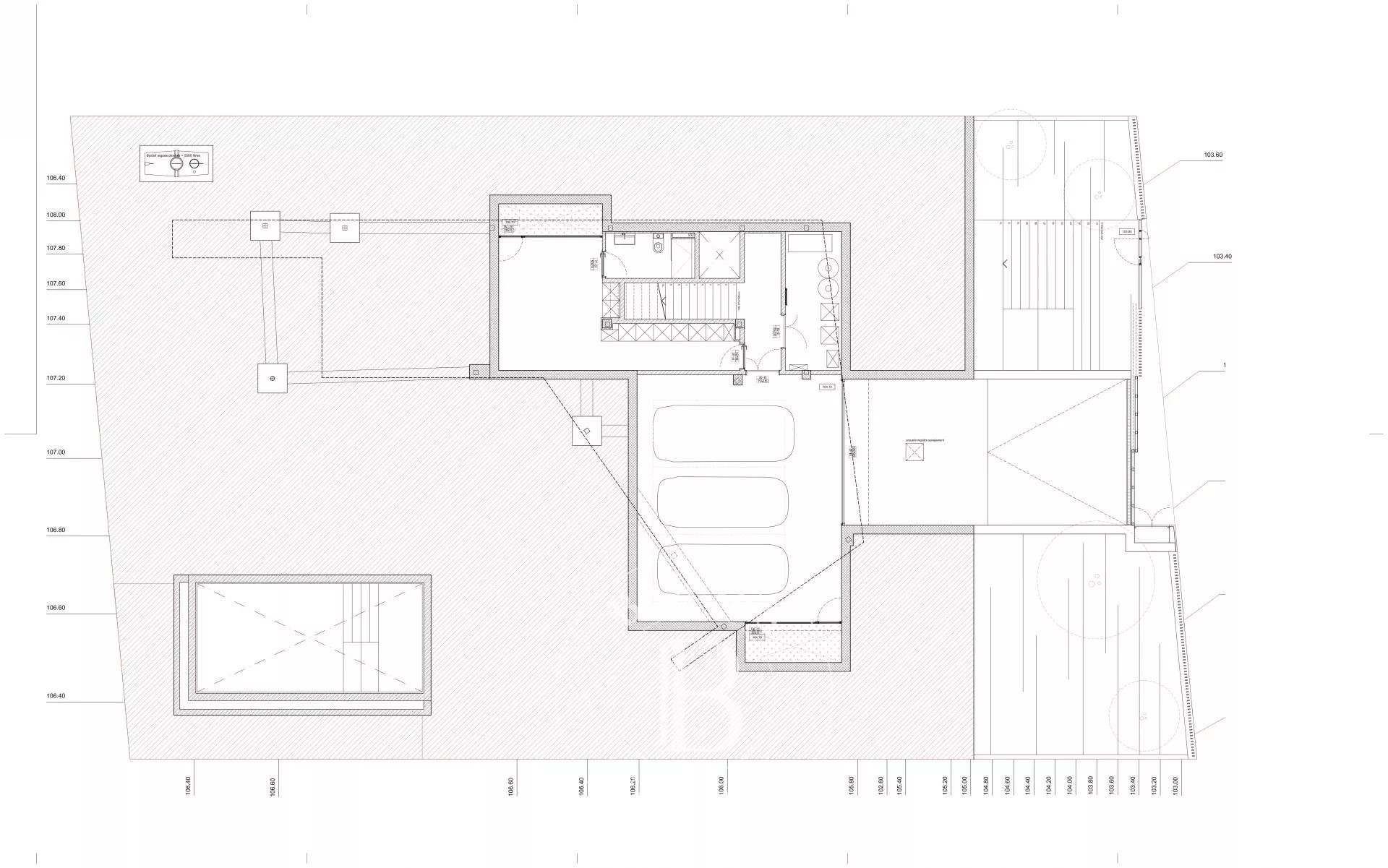
À l'étage supérieur se trouvent quatre chambres, dont une impressionnante suite parentale avec dressing et grande salle de bain privée. Les autres chambres sont spacieuses, lumineuses et partagent une salle de bain complète, offrant confort et fonctionnalité pour toute la famille.
Le rez-de-chaussée abrite un garage pouvant accueillir trois véhicules, une salle polyvalente et une salle de bains supplémentaire, offrant de multiples possibilités d'utilisation.
Parmi ses prestations, on trouve le chauffage au sol par aérothermie, un système domotique intégral, des caméras de sécurité et des matériaux de haute qualité, garantissant efficacité, bien-être et tranquillité.
Une propriété unique dans un environnement résidentiel exclusif, à quelques minutes de la mer et de prestigieuses écoles internationales, idéale aussi bien comme résidence principale que comme investissement haut de gamme.
Contactez l'équipe de Barnes pour plus d'informations ou pour organiser une visite privée.
Avertissement légal : conformément à la réglementation en vigueur en Catalogne, nous vous informons que le prix publié n'inclut pas les frais de notaire, d'enregistrement ni les taxes applicables, telles que l'ITP ou, le cas échéant, la TVA et l'AJD. Ces montants peuvent varier en fonction de la législation et de la valeur du bien.





















































